導航:回首頁---當前位置---水泵產品內容頁補充頁 >> G型單螺桿泵結構圖|CAD圖紙說明 |
![]() |
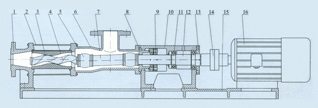
G型單螺桿泵|結構圖說明G型單螺桿泵結構圖說明:1、出料體2、拉桿3、定子4、螺桿軸5、萬向節或銷接6、進料體7、連接軸8、填料座9、填料壓蓋10、軸承座11、軸承12、傳動軸13、軸承蓋14、聯軸器15、底盤16、電機
![]() 下一頁:G型螺桿泵外形安裝尺寸
[來源:原創]
[作者:水泵專家]
[日期:10-09-09]
[熱度:]
最新文章SBLW全自動無負壓穩流給水設備參數四09.09 SBLW全自動無負壓穩流給水設備參數三09.09 SBLW全自動無負壓穩流給水設備參數二09.09 SBLW全自動無負壓穩流給水設備參數一09.09 SYDL不銹鋼多級離心泵參數一09.09 SYDL不銹鋼多級離心泵參數八09.09 評論 |

